概述
電動V型調節球閥適用于高硬度的顆粒或有軟顆粒但又有腐蝕性介質管道上作啟閉之用。公稱壓力1.6MPa,適應溫度≤200℃。與介質接觸的部分均為結構陶瓷材料,其化學穩定性及硬度極高(洛氏硬度HRC90)。本閥具有的耐磨損、耐腐蝕、耐沖蝕性能,且隔熱性好、熱膨脹小。球體采用研磨設備及工藝制造,球園度精度高,表面質量好,與閥座對研后,利用Zr02陶瓷的自潤滑性,可取得好的密封性能。陶瓷良好的耐磨性,讓本閥經久耐用。
型式同心角行程型
公稱通徑25~300mm
公稱壓力M級:(DN25~300)
JIS 10K、20k、30k
ANSI 150#、300#
PN1.6、2.5、4.0、6.4MPa
H級: (DN25~150)
JIS 40K、ANSI 600#、PN6.3
連接型式對夾式 法蘭式
材 料WCB、1Cr18Ni9TI、0Cr18Ni12Mo2Ti、Ti(CF8、CF8M、CF3、CF3M)(SCPH2、SCS13A、SCS14A)
上 閥 蓋標準型(與閥體一起鑄造)-45~400℃(參見表1)但請注意各種材質的使用溫度、壓力范圍
填料聚四氟乙烯石棉填料、柔性石墨填料
執行機構
型式3610電子式電動執行機構(可配德國PSQ、國產DKJ、SJ及智能電動執行機構IWK系列)3410R電動執行機構
輸入信號調節性:4~20mA·DC 1-5V·DC
兩位式:220VAC正反切換信號
閥位反饋信號4~20 mA·DC
電源電壓220VAC,50Hz
380V/(IWK系列)
手動機構便攜式手動曲柄
環境溫度-10~+60℃,帶加熱器:-35~+40℃
閥作用型式電關式或電開式
閥內組件
閥芯形式帶V型切口的部分球面形
流量特性近似等百分比特性
材料閥芯:不銹鋼(1Cr18Ni9TI、1Cr18Ni12Mo2Ti、316L)耐腐蝕合金等
閥芯轉角90°
性能
基本誤差±1.0%回差 1.0%死區1.0%額定行程偏差2.5%
可調范圍
300:1
結構特點
VQ947H型電子式電動調節型球閥由電子式執行機構和調節機構等部分組成。
執行機構
電子式電動執行機構的詳細結構說明請參閱執行機構說明書。
工作原理
當執行機構的控制部分接受來自調節器的信號(輸入信號4~2 0mA. DC或I~5V. DC)和來自開度檢測部分的開度信號,將兩信號比較并放大,向消除其差值的方向驅動和控制電機產生推力,通過連接來帶動閥芯的移動,從而改變閥芯與閥座的流通面積,直到消除兩部分的偏差,電機停止作,閥芯停止運動,以此來達到自動調節和切斷的目的。
執行機構
電子式電動執行機構的詳細結構說明請參閱執行器說明書。
裝技術生產的高性能電動執行機構,機內有伺服系統,無需另配伺服放大器,關鍵部件控制器采用混合集成
電路,并用樹脂澆注固化,經老化處理,可靠性高、防潮、防震。采用底座、曲柄方式安裝時,曲柄零點的位置可在
0~360℃內任意確定。此外,執行機構具有過載保護、溫度保護及力矩開關保護三項保護功能。

3810是3610系列執行機構的升級換代產品,除具有3610系列伺服系統內裝,無需另配,關鍵部件控制器采
用先進的混合集成電路,并用樹脂澆注固化老化,可靠性高、防潮、防震;具有過載保護、溫度保護及力矩開
關保護三項保護功能等特點外,在方便使用方面做了大量的改進。
作為一種角行程執行機構,NA系列電動執行機構結構緊湊,即使安裝在危險的作
業環境中也能保證其高可靠性和品質。NA系列電動執行機構還能在輸出轉矩60NM~2500NM

PSQ系列角行程電子式電動執行機構體積小、重量輕、功能強,伺服放大器內裝,操作方便。
適用于對蝶閥、球閥、旋塞閥等90°角行程的調節及on/off動作。連接連桿后可用于風門及
檔板的調節。可選方頭輸出閥連接。
Nucom系列角行程電子式電動執行機構與傳統的空氣式閥門驅動裝置相比,精度高(分解度
1/250以上),牢固可靠,運轉成本低,不需維護保養。可直接接受工業控制儀表或計算機等輸
出的4~20mA.DC(1~5V.DC)信號,進行位置控制。
調節機構
主要由閥體、閥桿、球芯、閥座、填料壓板等主要零部件組成。從作用方式上,它們分為電開、電關。當信號增加時,閥芯由關閉逐漸打開到全開位置為電開式;當信號增加時,閥芯由全開逐漸到全閉位置為電關式。

主要參數
公稱通徑(mm) | 15 | 20 | 25 | 40 | 50 | 65 | 80 | 100 | 125 | 150 | 200 | 250 | 300 |
流量系數 | 10 | 16 | 25 | 63 | 100 | 160 | 250 | 400 | 630 | 1000 | 1600 | 2500 | 4000 |
額定行程 | 90° |
公稱壓力 | 1.6、4.0、6.4MPa |
流量特性 | V型:近似等百分比 |
可調范圍 | 100:1、200:1、300:1 |
作用形式 | 電開式、電關式 |
法蘭標準 | JB78-59、JB79-59、JB/T79.1-94、JB/T79.2-94、ANSI、JIS、DIN等標準 |
注:公稱壓力、公稱通徑超出列表范圍的產品可與本公司商洽解決
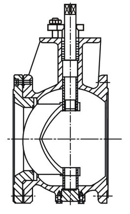
主要零部件材料
序號 | 名稱 | 材料 | 序號 | 名稱 | 材料 |
1 | 左右體 | WCB | 8 | 填料 | PTFE |
2 | 閥體 | WCB | 9 | 填料壓蓋 | 2Cr13 |
3 | 襯套 | 復合工程陶瓷 | 10 | 支架 | Q235 |
4 | 球體 | 復合工程陶瓷 | 11 | 蝸桿裝置 | |
5 | 閥座 | 復合工程陶瓷 | 12 | 螺柱 | 35 |
6 | 閥桿 | 2Cr13 | 13 | 螺母 | 25 |
7 | 墊片 | 石墨 | | | |
最大允許壓差
允許壓差與執行機構配置等有關,訂貨時應注明工作壓差,便于生產廠家確定配置。
流量特性曲線

外形尺寸

PN 1.6MPa(ANSI15Lb)

注:各規格所配執行機構因工藝參數不同會有變化。
PN4.0 Mpa(ANSI300Lb)

注:各規格所配執行機構因工藝參數不同會有變化。